

Έτος: 2009-2010
Πελάτης: Κ+Ρ Group S.A.
Στα πλαίσια κατασκευής του νέου υπέργειου χώρου στάθμευσης στον χώρο βραχείας στάθμευσης Ρ1 στο αεροδρόμιο Ελευθέριου Βενιζέλου της Αθήνας, η μελέτη αντιμετώπισε το σχεδιασμό του περιβάλλοντος χώρου στην στάθμη των Αφίξεων.
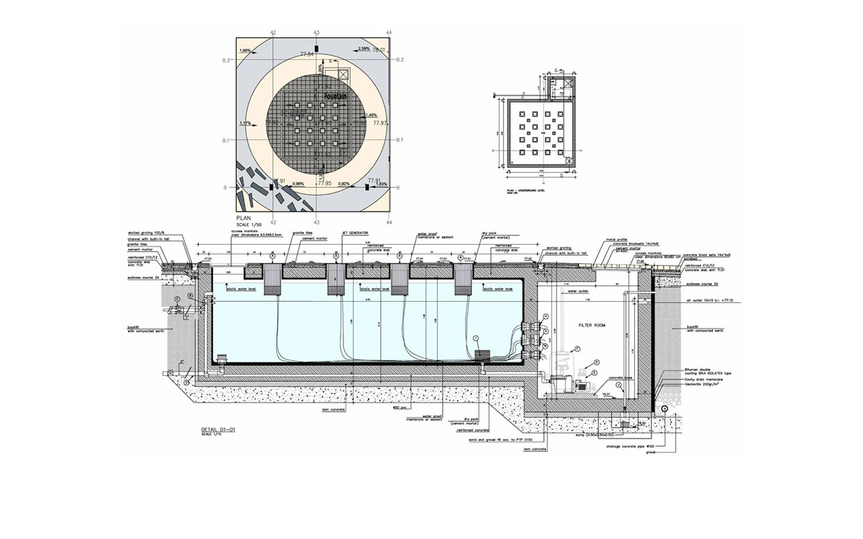
Δημιουργήθηκε στην είσοδο του Κτιρίου μία νέα πλατεία όπου κυριαρχεί το υδάτινο στοιχείο με την μορφή πιδάκων. Βασικός στόχος ήταν να σχεδιαστεί μια πλατεία που αφενός να αποτελεί σημείο αναφοράς στους χρήστες και αφετέρου να είναι ένας ευχάριστος χώρος εισόδου στο Κτίριο Στάθμευσης.
Όλα τα υλικά των δαπέδων είναι από φυσικά υλικά και η χρήση ένθετων ¨πατημάτων¨ από μάρμαρο δημιουργεί, σε συνδυασμό με ένθετα στο δάπεδο φωτιστικά, σαφείς πορείες από τις θύρες Αφίξεων προς το Κτίριο Στάθμευσης.
Στη νότια πλευρά του Κτιρίου, οι κυκλικές ράμπες ανόδου και καθόδου πλαισιώνονται στο επίπεδο του εδάφους από τοξωτές αναπτύξεις θάμνων που δίνουν την αίσθηση ότι όλο το Κτίριο προβάλλεται μέσα από τον ήδη υφιστάμενο χώρο φύτευσης.